Passer au contenu principal Passer à la recherche Passer à la navigation principale
Menu

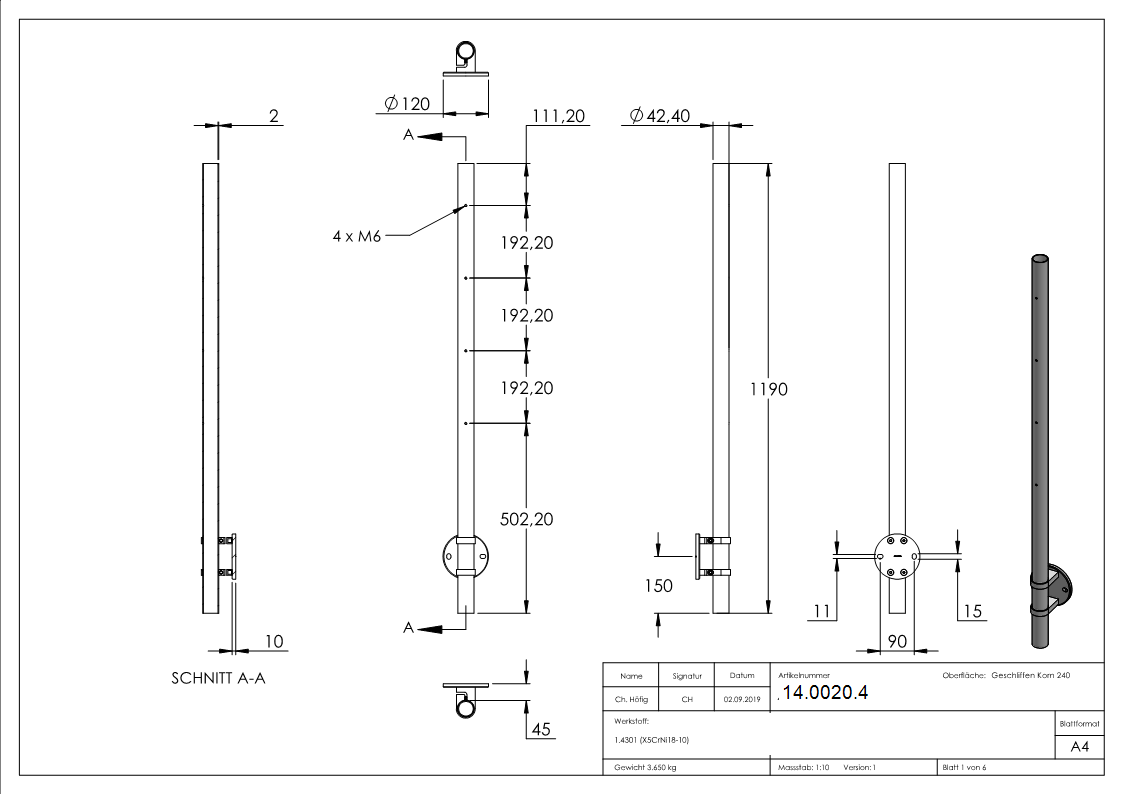
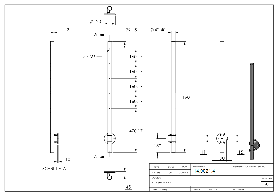
pour un montage mural

// Pfosten zur Wandmontage für moderne Edelstahlgeländer und stabile Konstruktionen

Filtre